Architects
Your vision is brought to life by our Architectural BIM services.
WHAT DO WE DO FOR YOU?
Our Architectural Team along with their in-depth experience in various types of BIM technologies, help you built more responsive buildings, projects, and cities across the globe. It also helps provide an insight into the complete aspect of what the project can do for the clients, owners, contractors, stakeholders, consultants, and users of the community. Our expertise in BIM Technologies along with efficient project management skills, enables us to provide interdisciplinary Architectural services to the AEC sector, with the goal of maximising the quality of the built environment at a global level.
We have supported our clients in their Building Information Modeling projects, from simple 3D parametric modeling to value-added services such as coordination between the various disciplines with interference checks and clash detection, construction sequencing, 4D and 5D analysis.








DESIGN DEVELOPMENT MODEL
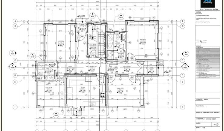
MODEL-BASED DESIGN AND CONSTRUCTION DRAWINGS
INTERIORS MODEL AND DRAWINGS




GEO-LOCATION & SITE TOPOGRAPHY MODEL
MODEL-BASED QUANTITY TAKE-OFFS
CONCEPTUAL & DESIGN OPTIONS MODEL
Contact
Reach out for precise precast solutions.
Phone
0406938960
© 2026. All rights reserved.
Plot F-471, Major’s Tower, Phase 8-B, Industrial Area, Mohali.
69 buln buln Rd drouin 3818 Victoria.